Race Street Project
Single-Family Residence 2015 - 2016 - LEED Gold
Principal Design Architect: Terry Boling
Architect of Record: Jim Guthrie, Hub & Weber
Engineer: Don Roenker
2020 CRAN Awards - Multi-Unit Housing
Principal Design Architect: Terry Boling
Architect of Record: Jim Guthrie, Hub & Weber
Engineer: Don Roenker
2020 CRAN Awards - Multi-Unit Housing
Michael's responsibilities including construction documents and construction administration.
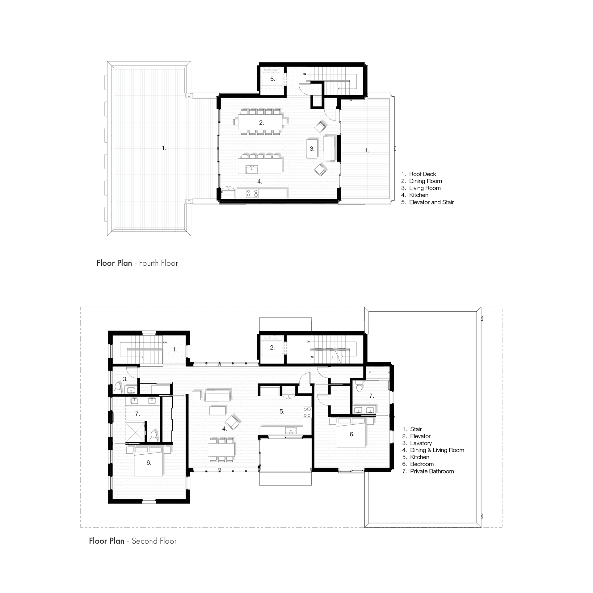
The Stannary is a four-story, 3 unit urban infill project located in the historic Over-the-Rhine neighborhood of Cincinnati. The owners occupy the 3rd and 4th floors and the remaining floors are apartments. The site strategy was based on maintaining maximum street frontage on the West, Race Street facade while creating courtyards to the South and North of the building to let in more light in the long dimension of the building. All units have access to exterior space and terraces, and the 4th floor has a generous terrace overlooking Race Street with a large, retractable glass wall opening to the kitchen and living area. There is another terrace facing East that is also accessible from the 4th floor living area.