Historic Renovation
Single-Family Residence 2020-Present
Project Designer: Michael Rogovin
Engineer: Eric Oetjen, AO Structural Engineers
Consultants: Green Building Consulting (LEED)
General Contractor: DesignBuild GC, Damon Long
Project Designer: Michael Rogovin
Engineer: Eric Oetjen, AO Structural Engineers
Consultants: Green Building Consulting (LEED)
General Contractor: DesignBuild GC, Damon Long
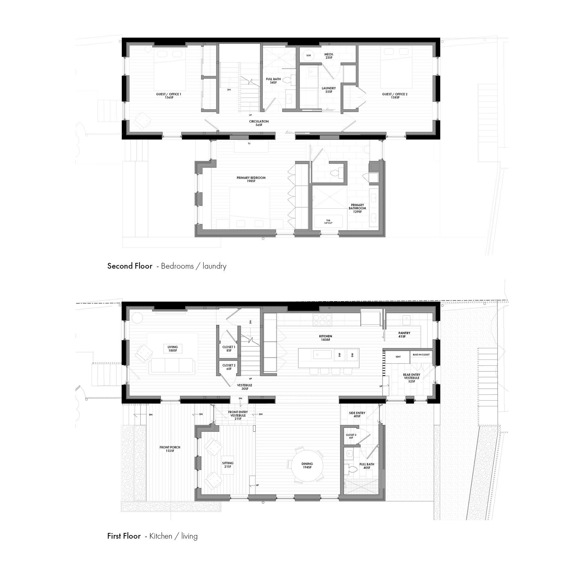
This project, located in the Prospect Hill neighborhood of Cincinnati, Ohio, started as a simple renovation of a single structure. The scope expanded over time to include a total of three buildings adjacent to one another. Each were in a state of severe disrepair with extensive water damage and neglect due to being vacant for years. It was determined that one of the buildings would not be viable to repair but instead needed to be demolished. Of the two remaining structures, one would receive only an interior renovation, while the other would receive both a renovation plus a sizable addition.
The project site sits within a historically protected neighborhood. As such, it was required to receive approval from the Cincinnati Historic Review board as well as the planning commission before proceeding. The project one a Certificate of Appropriateness from the former in late 2024 and approval from the latter in 2025. As of the time writing this, one building has been fully demolished while the other two have gone through extensive stabilization. This includes masonry repair, interior demolition, and roof repair.
The project site sits within a historically protected neighborhood. As such, it was required to receive approval from the Cincinnati Historic Review board as well as the planning commission before proceeding. The project one a Certificate of Appropriateness from the former in late 2024 and approval from the latter in 2025. As of the time writing this, one building has been fully demolished while the other two have gone through extensive stabilization. This includes masonry repair, interior demolition, and roof repair.